Cấu tạo cầu xe nâng container KAT-YR10
Cầu xe nâng container KAT-YR10 hay mobile ramp sử dụng nhiều trong các nhà máy, khu vực loading bay và tại các bến cảng để làm cầu dẫn kết nối với xe container cho xe nâng chạy thẳng lên bốc dỡ hàng hóa.
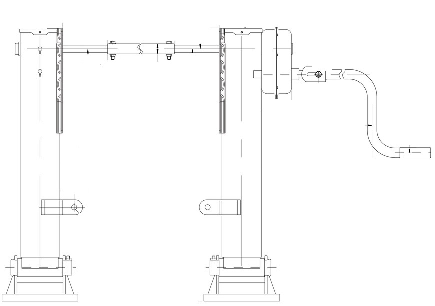
Cấu tạo từ các thành phần cơ bản sau

1- Cơ cấu nâng
Cầu dẫn được nâng hạ bằng hệ chân chống có hộp số cơ 2 cấp với chuyên dụng của rơ móc container, khả năng chịu tải lên đến 28 tấn. Đảm bảo an toàn trong suốt vòng đời sản phẩm.
2- Dầm chính
Dầm chính sử dụng các loại thép hình chữ I thiết kế phù hợp với tải trọng và nhu cầu sử dụng của từng loại model.
3- Đuôi ramp
Ramp đuôi là bộ phận tiếp xúc với nền, có khớp xoay để có thể gấp lên phía trước. Với thiết kế khớp xoay để ramp đuôi luôn tiếp đất hoàn toàn nếu mặt nền không bằng phẳng.
4- Barrier
Barrier là phần lan can an toàn, chạy dọc theo chiều dài cầu xe nâng. Được làm bằng thép tấm dày 3 mm hoặc option là thép ống tròn D48 mm
5- Lip- Mỏ tiếp sàn xe
Lip – mỏ tiếp sàn xe thép tấm dày 10 mm có khớp xoay, dùng để gác lên thùng xe vì giữa thùng xe và cầu dẫn xe nâng luôn có khoảng hở.
6- Chống trượt đoạn dốc
Để hạn chế xe nâng bị trượt khi nào leo, đoạn dốc được hàn thêm thanh gân chống trượt hoặc lưới gratin
Hướng dẫn vận hành cầu xe nâng
1- Điều chỉnh độ cao cầu dẫn
– Để nâng hạ cầu dẫn bằng tay quay của bộ chân chống.
– Bộ hộp số của chân chống có 2 cấp: High – Low. Ở chế độ High tốc độ nâng hạ sẽ nhanh hơn so với chế độ Low. Chuyển chế độ High : dùng tay quay đẩy vào phía trong khi nghe có tiếng ăn khớp của bánh răng là được. Tương tự chế độ Low kéo ra ngoài.



2- Định vị cầu dẫn xe nâng
Kiểm tra toàn bộ shoe của chân chống đã nằm trên nền kho hoàn toàn và thăng
bằng trước khi cho phép xe nâng chạy lên cầu dẫn.
Trong trường hợp, có shoe chưa chạm nền hoặc chạm 1 phần cẩn phải sử dụng tấm kê
để căn chỉnh cầu dẫn được thăng bằng.
Khi xe container đã vào vị trí, neo xích phía đầu của cầu dẫn vào xe container.
Yêu cầu của tấm kê
– Kích thước tối thiểu là 350 x 350 mm.
– Vật liệu bằng sắt
– Đặt tấm kê vào giữa shoe chân chống.
– Kiểm tra thường xuyên tấm kê nếu bị lệnh ra ngoài phải chỉnh lại ngay.
3-Di chuyển cầu dẫn
B1: Hạ cầu dẫn để bánh xe chạm nền đến khi khoảng hở giữa đáy shoe chân
chống và mặt nền tối thiểu đạt 50 mm

B2: Móc xích vào càng xe nâng
– Đưa xe nâng về phía đuôi cầu dẫn.
– Đẩy cặp càng xe nâng về chính giữa nằm sát nhau.
– Luồn xích qua cặp càng xe nâng.
– Cố định xích vào bệ càng xe nâng để xích không bị trượt trong quá trình di chuyển.

– Nâng đuôi cầu dẫn lên vào di chuyển đến vị trí mong muốn

– Lưu ý:
+ Di chuyển cầu nâng với tốc độ vừa phải < 5km/ giờ.
+ Tránh gây lực va đập đột ngột.
+ Tuyệt đối không được kéo, đẩy cầu nâng từ bên hông. Có thể gây hư hỏng vì cầu
nâng không thể chịu được lực tác động từ bên hông.
KAT- Đơn vị chuyên nghiệp trong cung cấp tư vấn các giải pháp hỗ trợ nâng hạ trong nhà máy
Cầu xe nâng – Bàn nâng thủy lực – Dock Leveler – Thang nâng thủy lực – Dock shelter
Địa Điểm Lắp Đặt Cầu Xe Nâng Container
| Miền Nam | Hồ Chí Minh, Long An, Cần Thơ, Sóc Trăng, Bình Dương, Đồng Nai, Bình Phước, Vũng Tàu,… |
| Miền Trung | Đà Nẵng, Quảng Nam, Quảng Ngãi, Khánh Hòa, Bình Thuận, Nghệ An,... |
| Miền Bắc | Hà Nội, Bắc Ninh, Hải Phòng,... |
